令和08年5月31日 18時29分 更新
次回更新予定日:令和8年6月1日
関西不動産販売株式会社
売戸建・大阪市此花区物件情報
お電話でのお問合せはお気軽にこちらまで
本社 06-6536-2081
阿倍野支店 06-6623-6766
一般公開物件数:55件/会員公開物件数:103件
トップページへ
>
【居住用】 エリア別一覧へ
> 物件情報
エリア別一覧
間取一覧
地図一覧
この他にも、売主様等のご都合により、ホームページ上に掲載できない物件が多数ございます。
希望条件登録(会員登録)をして頂ければ、広告不可物件や新規物件をご紹介させて頂きます。
また、現在 会員専用サイトでは大阪市西区・浪速区・阿倍野区・東住吉区内の全物件を閲覧出来ます。
会員登録については、虚偽情報に基づく登録はご遠慮願います。
登録はこちらから ⇒
こちら
既に会員登録がお済の方はこちらから ⇒
クリック
詳細
物件番号
写真画像
所在地
バス停最寄施設
価格
土地面積
建物面積
間取
階/階建
西暦築年月
建物構造
小学校区
中学校区
画像
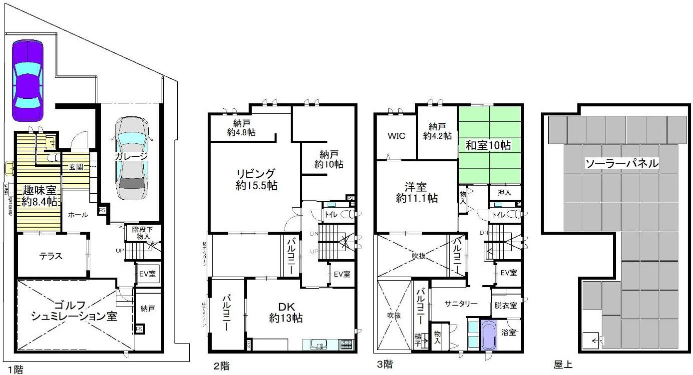
Bk25702
大阪市此花区島屋3丁目
JRゆめ咲線「安治川口」駅 徒歩4分
12,000万円
165.88m
2
265.22m
2
3SLDK+フリールーム
3階
2014/03
鉄骨造合金メッキ鋼板葺
島屋小学校
梅香中学校
土地面積50.19坪/鉄骨造合金メッキ鋼板葺3階建/2014年3月建築/積水ハウス施工・拘りの注文建築住宅/長期優良住宅建築等計画認定物件/3LDK+4納戸+フリールーム+車庫2台/ホームエレベーター付/屋上にソーラーパネル付(年間発電量約40万円相当)/JRゆめ咲線「安治川口」駅徒歩4分/ユニバーサル・スタジオ・ジャパンまで1駅/
ページトップへ